Projektet
Nyt sommerhus
Nedrivning ad eksisterende ejendom
Opførelse af nyt sommerhus
Bygherre ønskede at nedrive eksisterende bolig som var et ændre sommerhus.
Lokation
Kerteminde
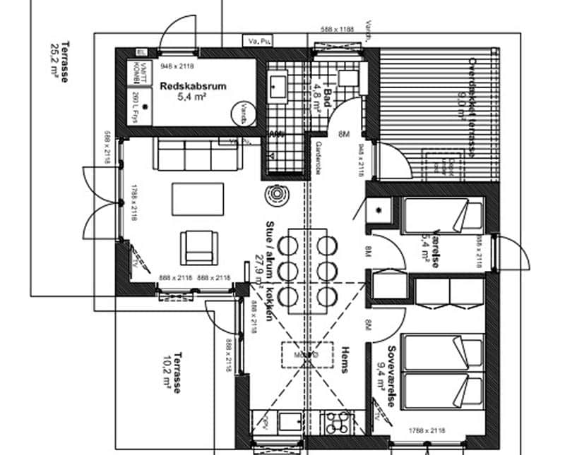
Størrelse
66 m2
Byggeri type
Sommerhus
År
2014
Status
Udført
Kunde
Privat
