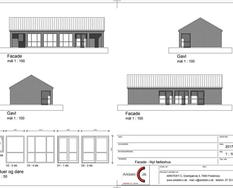
Nyt Fælleshus – Erritsø Kontakt os Projektet Opførelse af nyt fælleshus Kontakt os Lokation Erritsø/Fredericia Størrelse 79 m2 Byggeri type Fælleshus År 2018 Status Udført Kunde Erhverv Nybyggeri Erhverv Renovering